На главную

Офис 25 м² в бизнес-центре «Бутырский», 3/4 этаж

Москва, САО, р-н Савеловский, ул. Бутырская, 67, стр. 1

м. Дмитровская ⋅ 5 мин. пешком

м. Савеловская ⋅ 10 мин. пешком

Цена - 91005 ₽/мес., ставка - 15381 ₽ за м²/год, налог - УСН, обеспечительный платеж - 834 375₽, предоплата - 1 месяц, прямая аренда. Юридический адрес - предоставляется, номер налоговой - 14. Пропускная система, парковка- наземная на 40 м/мест

Столовая, кафе, кофейня.

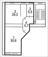
Аренда отличного офисного блока от собственника! Площадь 71 кв.м. Светлое, удобное помещение с кабинетной планировкой. Отдельный вход, качественный ремонт, кондиционер. Имеется своя мокрая точка. Может быть использовано для офиса компании любого направления. Кроме того, оптимально подходит для размещения образовательного и медицинского учреждения, шоу-рума, интернет-компании. Здание расположено на первой линии домов в 5-ти минутах ходьбы от ст. метро Дмитровская. Рядом ТТК. На территории бизнес-центра работают столовая, ресторан и кофейня. Предоставляется парковка автомобилей для сотрудников и посетителей. Качественные услуги связи и интернет. Юридический адрес предоставляется. Комната для переговоров предоставляется бесплатно. Прямой договор аренды.